HusCompagniet

Charmerende moderne parcel med smukke sprosse vinduer og overdækket terrasse med glasinddækning.

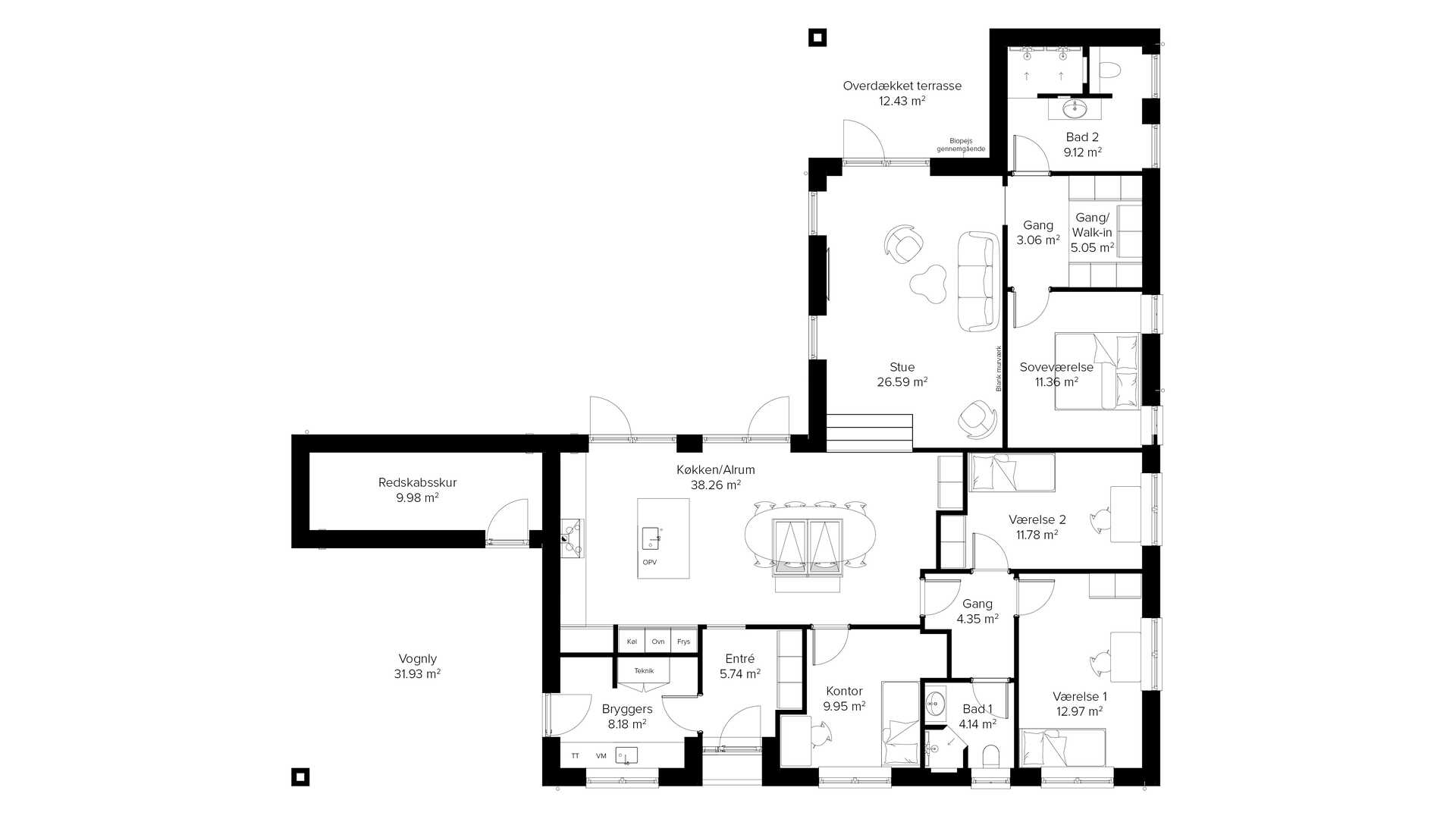
Huset byder på en spændende planløsning med forskudt niveau, der giver ekstra loftshøjde på hele 3 meter i stuen og voksenafdelingen. 

I stuen er der rustik murstensvæg, og med biopejs i ydermuren er du også sikret en hyggelig og varmere krog på den over- og glasinddækkede terrasse. 

Det hyggelige køkken/alrum - husets absolutte hjerte - har fantastisk lysindfald fra de store vinduespartier og ovenlys. Her er masser af skabsplads og udgang til de skønne uderum.

Forældreafdelingen er indrettet med soveværelse, stort walk-in og skønt badeværelse - alle rum med ekstra højt til loftet.

Ligeledes er der børneafdeling med to store børneværelser og badeværelse samt mindre kontor. Husets entré og bryggers byder på god, indbygget opbevaring.


Vi ser frem til at kontakte dig hurtigst muligt. Når du trykker send her, afgiver du samtykke til, at vi fremover må henvende os til dig på e-mail og telefon. Vores henvendelser indeholder god information om husbyggeri og konkrete tilbud. Vi behandler dine personoplysninger med stor omtanke, og som beskrevet i vores persondatapolitik Du kan til enhver tid tilbagekalde dit samtykke.

Du kan også ringe direkte til os +45 65 92 75 55

Bestil vores gratis katalog og se masser af arkitektur, få fakta, inspiration og bliv klogere på dine muligheder. Bliv inspireret til dit nye hjem.