HusCompagniet

Flot og indbydende funkisvilla med lækre detaljer. Her får du en eksklusiv funkisløsning på 205 m2 og stor dobbelt carport.

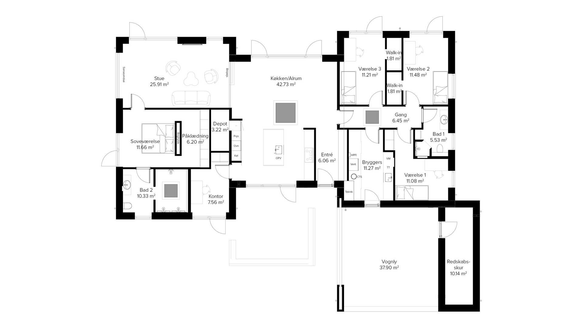
Boligen har en indbydende entré med dejligt lysindfald og god plads. 

Det store køkken/alrum er indrettet med et eksklusivt køkken i varme overflader i træ og naturfarver og de store vinduespartier og ovenlys giver et fantastisk lysindfald. I køkkenet findes også et stort skjult depot, som giver masser af opbevaringsplads. I forlængelse af køkken/alrummet ligger stuen, som foruden den hyggelige indretning, har et sansevindue og biopejs.

Den luksuriøse voksenafdeling har et rummeligt soveværelse med indbygget natbordshylde, påklædningsområde med masser af skabsplads, stort badeværelse med dobbeltbrus og badekar.

Den rummelige børneafdeling med tre gode værelser, hvoraf de to er med walk-in ligger i separat afdeling sammen med husets andet badeværelse.
Husets praktiske bryggers er stort og med masser af indbygget opbevaring.

Hele boligen oser af kvalitet og moderne detaljer, sammensat af farvenuancer, der giver en eksklusivitet og hygge til boligen.
Alt i alt et fantastisk hus til den pladskrævende og kvalitetsbevidste familie, der ønsker noget ud over det sædvanlige og ikke ønsker at gå på kompromis.

Vi ser frem til at kontakte dig hurtigst muligt. Når du trykker send her, afgiver du samtykke til, at vi fremover må henvende os til dig på e-mail og telefon. Vores henvendelser indeholder god information om husbyggeri og konkrete tilbud. Vi behandler dine personoplysninger med stor omtanke, og som beskrevet i vores persondatapolitik Du kan til enhver tid tilbagekalde dit samtykke.

Du kan også ringe direkte til os +45 65 92 75 55

Bestil vores gratis katalog og se masser af arkitektur, få fakta, inspiration og bliv klogere på dine muligheder. Bliv inspireret til dit nye hjem.