HusCompagniet

Arkitekturen er tidløs i denne moderne parcel. Læg mærke til den smukke facade, hvor både reces og trædetaljer giver længehuset masser af personlighed.

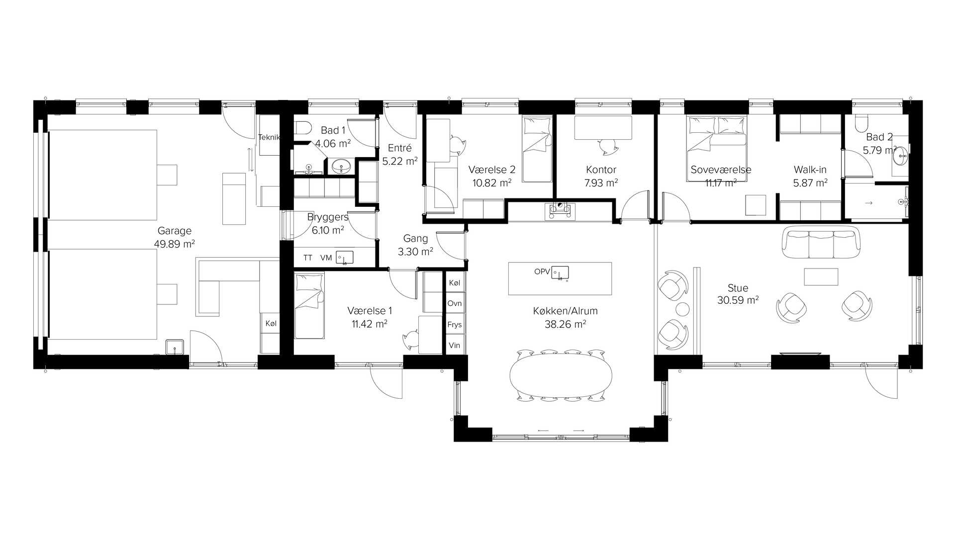
Den funktionelle og spændende planløsning på 166 m2 og dobbelt garage imødeser de fleste familiers behov.

I huset findes børneafdeling med to store værelser og eget badeværelse, samt stort og yderst brugbart bryggers, hvor der er direkte adgang fra garagen.

Forældreafdelingen er indrettet med masser af skabsplads i åbent walk-through og et skønt badeværelse.

I det rummelige og regulære køkken/alrum er der et godt lysindfald fra de store vinduespartier og den store skydedør. Her er højt til loftet, masser af opbevaringsplads og god plads til både madlavning og hygge. Køkken/alrummet ligger i åben forbindelse med stuen - let delt af en halvmur.


Vi ser frem til at kontakte dig hurtigst muligt. Når du trykker send her, afgiver du samtykke til, at vi fremover må henvende os til dig på e-mail og telefon. Vores henvendelser indeholder god information om husbyggeri og konkrete tilbud. Vi behandler dine personoplysninger med stor omtanke, og som beskrevet i vores persondatapolitik Du kan til enhver tid tilbagekalde dit samtykke.

Du kan også ringe direkte til os +45 65 92 75 55

Bestil vores gratis katalog og se masser af arkitektur, få fakta, inspiration og bliv klogere på dine muligheder. Bliv inspireret til dit nye hjem.