HusCompagniet
Charmerende klassisk parcel med sprossevinduer der giver huset et smukt ydre.
Huset er indrettet af stylist og boliginfluencer Helene Houe, som med sit sikre blik for klassisk stil og nordisk ro har skabt en varm og gennemført atmosfære.

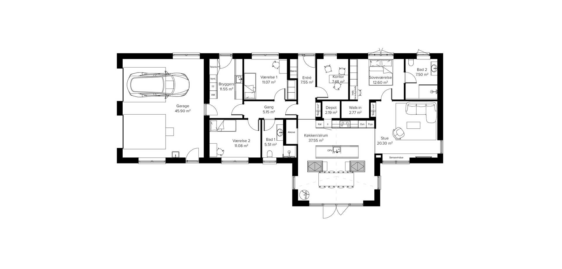
Husets har flere niveauer og det skaber naturlig opdeling mellem de forskellige afdelinger. Det hyggelige køkken/alrum er husets centrale midtpunkt og her finder man både en hyggelig alkove, en loftshængt biopejs, skjult depot og udgang til terrassen.
Den sænkede stue med det store sansevindue er den perfekte hyggekrog. 

Voksenafdelingen rummer et skønt soveværelse med både walk-in og skabsvæg med indbygget beautyplads samt et dejligt badeværelse.

Udover de to store børneværelser i separat afdeling rummer huset også et mindre kontor, bryggers og hyggelig entré med siddebænk.

Vi ser frem til at kontakte dig hurtigst muligt. Når du trykker send her, afgiver du samtykke til, at vi fremover må henvende os til dig på e-mail og telefon. Vores henvendelser indeholder god information om husbyggeri og konkrete tilbud. Vi behandler dine personoplysninger med stor omtanke, og som beskrevet i vores persondatapolitik Du kan til enhver tid tilbagekalde dit samtykke.

Bestil vores gratis katalog og se masser af arkitektur, få fakta, inspiration og bliv klogere på dine muligheder. Bliv inspireret til dit nye hjem.