HusCompagniet

Den klassiske parcel på 202 m2 giver god plads til den pladskrævende familie.

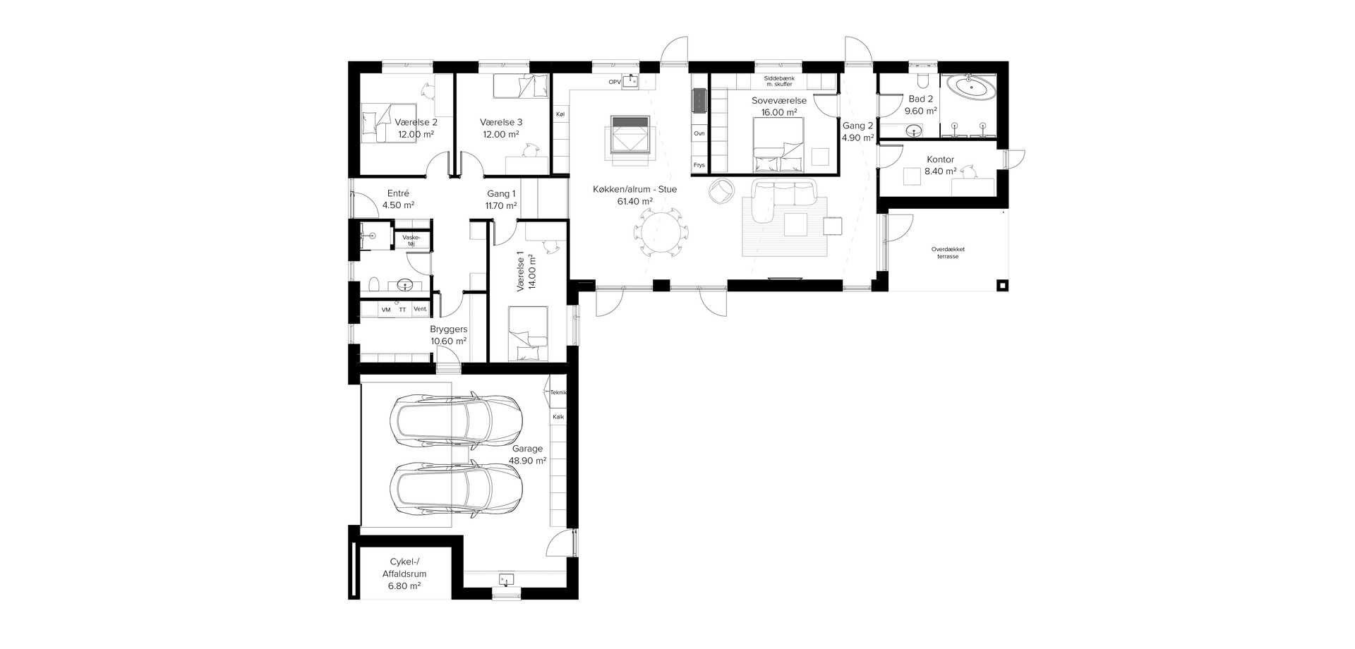
Her er husets hjerte - det store køkken/alrum og stue i ét, er husets absolutte midtpunkt med god plads til hygge og gæster. Herfra er der udgang til terrasserne på begge sider af huset og med den overdækkede terrasse forlænges de skønne sommeraftner.

Den separate børneafdeling rummer tre store værelser og et skønt badeværelse.
Husets voksenafdeling rummer lækkert badeværelse med dobbelt brus og badekar. Soveværelset rummer masser af indbygget opbevaring og hyggelig siddeplads i den indbyggede skabsvæg.

Husets praktiske bryggers ligger i forbindelse med indgang fra garagen og har masser af opbevaringsplads. Den dobbelte garage og det praktiske skraldeskjul/cykelskur giver god opbevaring og gør hverdagens praktik lettere.

Vi ser frem til at kontakte dig hurtigst muligt. Når du trykker send her, afgiver du samtykke til, at vi fremover må henvende os til dig på e-mail og telefon. Vores henvendelser indeholder god information om husbyggeri og konkrete tilbud. Vi behandler dine personoplysninger med stor omtanke, og som beskrevet i vores persondatapolitik Du kan til enhver tid tilbagekalde dit samtykke.

Bestil vores gratis katalog og se masser af arkitektur, få fakta, inspiration og bliv klogere på dine muligheder. Bliv inspireret til dit nye hjem.