HusCompagniet

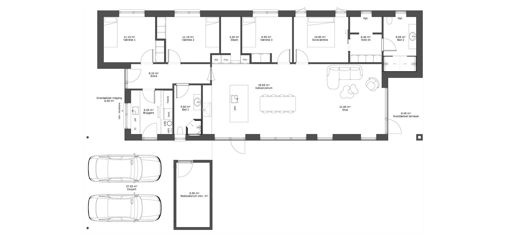
Til huset hører en sammenbygget dobbelt carport på 49 m² med redskabsrum.

Huset er bygget i moderne funkisarkitektur med ensidig taghældning og tagpap på taget.

Huset byder på mange spændende detaljer og et helt unikt lysindfald gennem de store vinduespartier i køkken/alrummet og yderligere dobbelte vinduespartier i stuen med ovenpåliggende vinduer.

Huset er indrettet med en børneafdeling i den ene ende af huset, som indeholder 2 store børneværelser, et badeværelse og bryggers.

I den anden ende finder man husets soveværelsesafdeling der indeholder soveværelse med walk-in og badeværelse med dobbeltbrus. I husets midte finder vi køkken/alrum med stort ovenlysvindue og åben adgang til stor stue med udgang til overdækket terrasse.

Skråloft i hele huset giver en fantastisk loftshøjde med et godt lysindfald og plads til hele familien. Den hyggelige overdækkede terrasse, er orienteret mod syd, så man kan få en optimal udnyttelse af solen hele dagen.

Vi ser frem til at kontakte dig hurtigst muligt. Når du trykker send her, afgiver du samtykke til, at vi fremover må henvende os til dig på e-mail og telefon. Vores henvendelser indeholder god information om husbyggeri og konkrete tilbud. Vi behandler dine personoplysninger med stor omtanke, og som beskrevet i vores persondatapolitik Du kan til enhver tid tilbagekalde dit samtykke.

Du kan også ringe direkte til os +45 97 22 35 23

Bestil vores gratis katalog og se masser af arkitektur, få fakta, inspiration og bliv klogere på dine muligheder. Bliv inspireret til dit nye hjem.