HusCompagniet
  • 216 m2 murermester villa
  • 216 m2 murermester villa
  • 216 m2 murermester villa
  • 216 m2 murermester villa
  • 216 m2 murermester villa
  • 216 m2 murermester villa
  • 216 m2 murermester villa
  • 216 m2 murermester villa
  • 216 m2 murermester villa
  • 216 m2 murermester villa
  • 216 m2 murermester villa

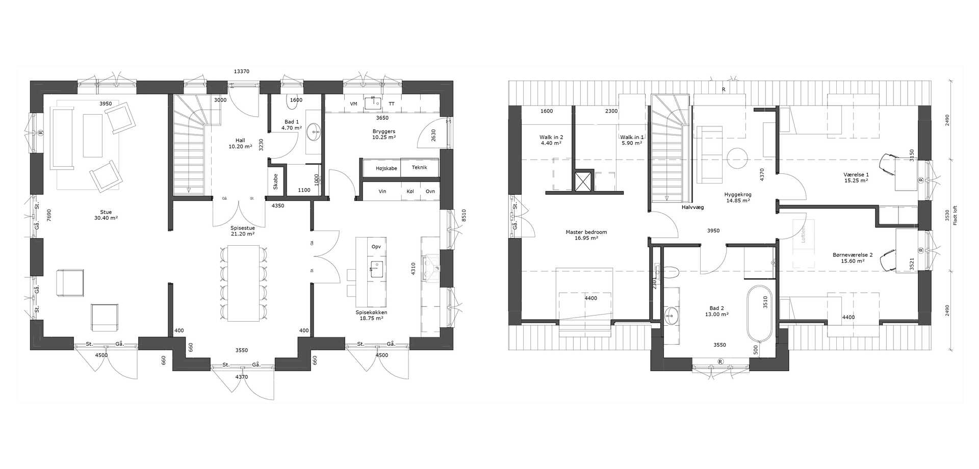
Huset er opført som et 1½ plans trempelhus på 216 m2 i murermester arkitektur. I stueetagen er lofthøjden øget med 20 cm. hvilket giver en rigtig god rumfornemmelse. Denne murermestervilla tilbyder hele pakken, når familien har forelsket sig i lige netop denne arkitektur. Oplevelsen begynder i den rummelige hall. Herfra er videre adgang til den store, åbne spisestue som forbinder til stue og køkken med fløjdøre og elegante trægulve.

Desuden byder stueetagen på badeværelse/gæstetoilet, stort bryggers med egen indgang og et åbent køkken med havedør og integrerede hvidevarer. På førstesalen er det først og fremmest det store fællesrum, der tiltrækker sig opmærksomheden. Her kan fx indrettes til familiehygge, leg eller bare afslapning. Rummet fungerer tillige som fordelingsgang til etagens øvrige rum og værelser. Bemærk desuden, at der er adgang til et loftrum gennem lem på husets 1. sal.

Vi ser frem til at kontakte dig hurtigst muligt. Når du trykker send her, afgiver du samtykke til, at vi fremover må henvende os til dig på e-mail og telefon. Vores henvendelser indeholder god information om husbyggeri og konkrete tilbud. Vi behandler dine personoplysninger med stor omtanke, og som beskrevet i vores persondatapolitik Du kan til enhver tid tilbagekalde dit samtykke.

Du kan også ringe direkte til os +45 88 62 34 00

Bestil vores gratis katalog og se masser af arkitektur, få fakta, inspiration og bliv klogere på dine muligheder. Bliv inspireret til dit nye hjem.