HusCompagniet

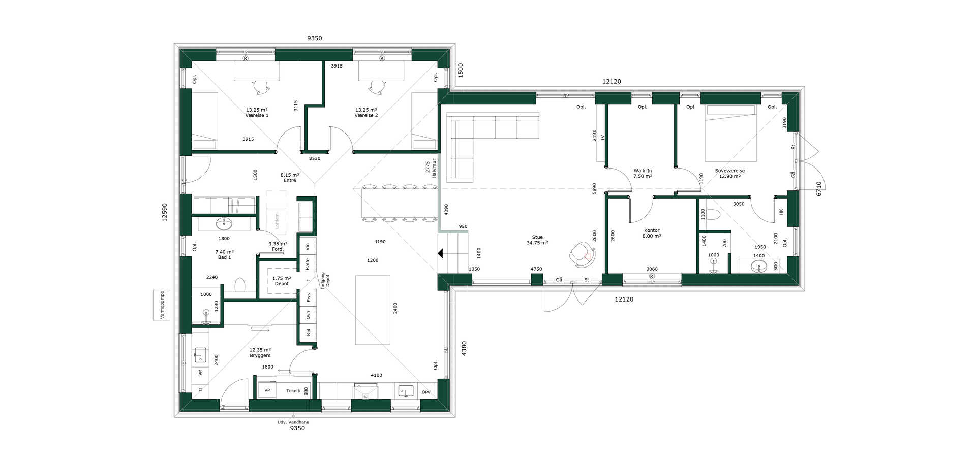
”Det føles jo som et slot”, udbryder vores fotograf, da han står på badeværelset hos Tina og Jens. Og det er da heller ikke så tit, at et badeværelse har 320 cm til loftet, men det har det hos Tina og Jens – og det samme har deres stue, kontor, walk-in og soveværelse – som til sammen udgør den ene halvdel af parrets hus, der er opdelt i to afdelinger i forskellige niveauer.

I den anden, øvre halvdel af huset ligger entré, køkken-alrum, bryggers, badeværelse og to børneværelser. De to afdelinger er forbundet af en åben trappe fra køkken-alrummet, hvor der desuden er kig ned til stuen over en halvmur.

Indretningen er et resultat af, at den lange, smalle grund har et fald på over to meter, så derfor skulle der tænkes kreativt. 

”Vi er virkelig glade for den måde, niveauforskellen er blevet løst. Vi var igennem forskellige muligheder med HusCompagniets arkitekt, som lyttede til, hvad vi kunne tænke os, og resultatet virker naturligt og fungerer i praksis,” fortæller Tina, som også selv brugte meget tid på både at tænke og tegne skitser, inden den endelige plan blev lagt.

”Det var en sjov proces, og vores hus er helt perfekt,” siger hun.

    

Fra utæt og snørklet til tæt og lige  

Jens og Tina tog et langt tilløb til at bygge nyt. Efter i flere år at have renoveret på deres gamle hus fra 1954 – et dårligt isoleret gasbetonhus, som var begrænset vedligeholdt af den tidligere ejer, og som løbende overraskede med både brandfarlige og giftige materialer – begyndte parret at overveje at bygge nyt.

”Vi nåede at bruge en mindre formue på at renovere det gamle hus over næsten 12 år, men listen var stadig lang – f.eks. manglede vi stadig at skifte taget og badeværelserne, og hele huset skulle pudses op på ny. Det var som at lappe på noget, der aldrig helt blev til det, vi gerne ville have,” siger Tina.

Foruden den dårlige stand fungerede planløsningen heller ikke.

”Det var et enormt snørklet hus med mange værelser, et lille køkken afskåret fra resten af huset, og det manglede klart et naturligt centrum og et hjerte, som vi ikke kunne få skabt,” fortæller Tina, der arbejder hjemme og derfor også savnede en bedre base i hverdagen.

Lavenergi var oplagt

Parret og deres to børn var dog meget knyttede til det område, det gamle hus lå i. Derfor besluttede familien til sidst at rive det ned til fordel for et nyt med både solceller og varmepumpe, hvilket har været med til at placere huset i lavenergiklassen.

”For os var det oplagt at vælge vedvarende energikilder til vores nye hus, og det fungerer upåklageligt og giver os både god komfort og lave udgifter,” siger Jens.  

Samtidig har det nye hus vist sig at være godt for familielivet.

”Vi er mere sammen, end vi var før, fordi vi har fået en langt mere familievenlig indretning. Huset har et centrum, hvor vi samles naturligt. Før vidste vi aldrig helt, hvor hinanden var,” siger Tina.  

”Og så er der bare rene og lige linjer, hvilket vi aldrig har prøvet før. Her bliver vi for altid,” tilføjer hun. 

 Læs også: Sine og Mark "Vi har fået det præcis, som vi ville have det." 

 

Vent venligst mens vi henter produkter - kan tage op til 10 sek.