HusCompagniet

Da Lisbeth Beck Mortensen og hendes familie begyndte at vokse ud af deres lejlighed i byen, startede jagten på det perfekte hus i forstaden. I lejligheden havde familien nydt godt af en loftshøjde på over tre meter, og derfor ledte de efter det samme i et hus, ligesom de i første omgang drømte om en ældre, charmerende bolig. 

”Det var det, vi kendte, og vi kunne i første omgang ikke forestille os andet,” fortæller Lisbeth. 

Husjagten stod på i lang tid, men gav ikke gevinst, og efterhånden begyndte Lisbeth og hendes mand Rune at tænke i nye baner.   

”Det med at sætte i stand blev for dyrt, når vi ingen kompetencer havde i den retning selv, og med små børn og travlt på arbejde, var det ikke realistisk,” forklarer Lisbeth.  

Runes forældre havde bygget nyt, og de havde længe talt varmt om det med ikke at skulle lave noget selv.

”Vi blev mere og mere lune på tanken om nybyg, i takt med at vi indså, at vi måtte vælge en anden vej end at renovere, og så fandt vi en byggegrund. Samtidig startede en ny, lang og sjov undersøgelsesproces for at finde ud af, hvad vi godt kunne tænke os,” fortæller Lisbeth.  

 

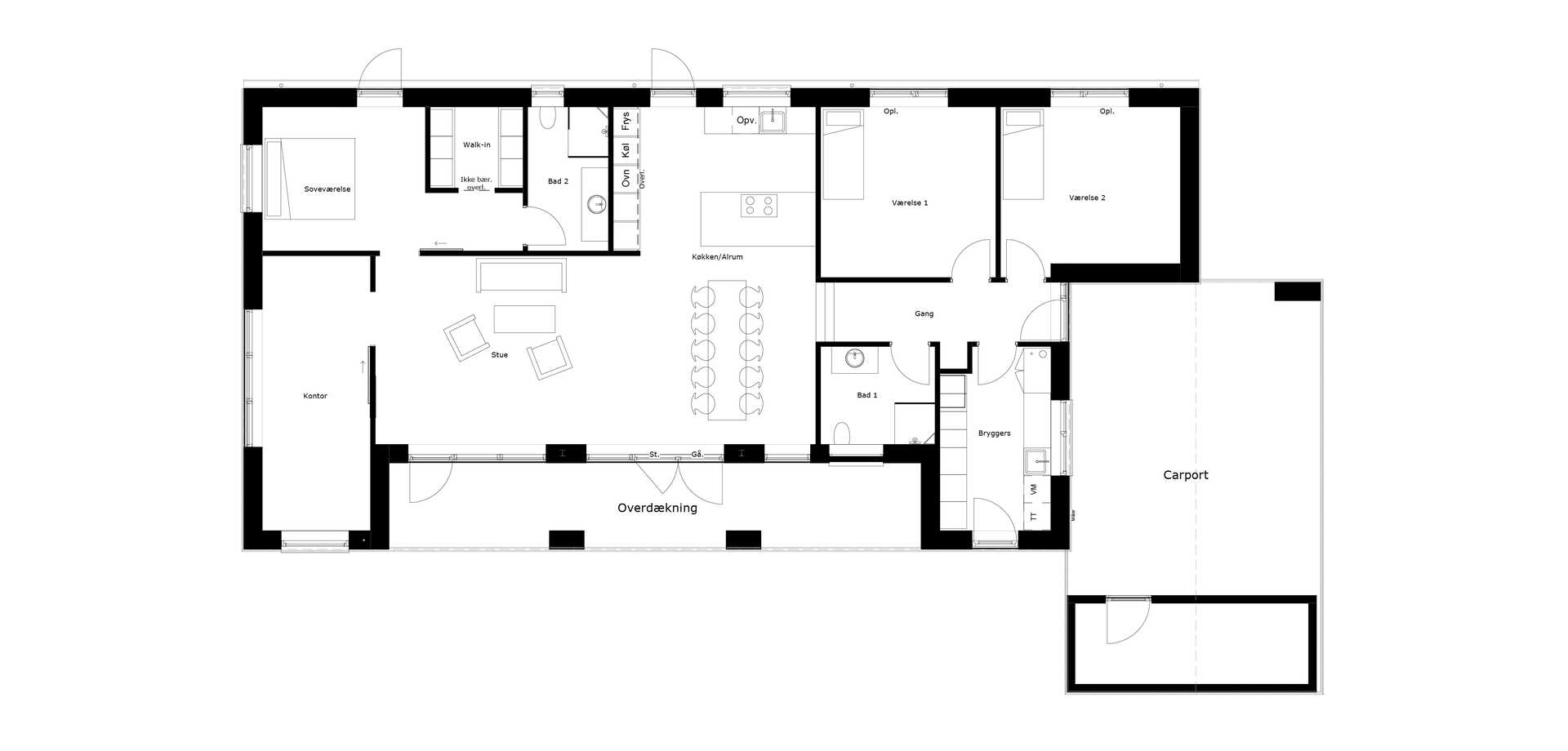
Højt til loftet var stadig et stort ønske for familien, og da deres nyerhvervede byggegrund var skrånende, var der mulighed for at lave en niveauforskydning fra entréen og ned, og dermed at skabe over fire meter til loftet i køkken-alrum og stue. Derudover har parret valgt at øge loftshøjden fra standard i alle værelser.

”Højt til loftet giver en helt fantastisk fornemmelse i et rum. Selv de mindste rum virker meget større på grund af den øgede loftshøjde. Når man har så højt til loftet, står tingene mere ud, fordi der er plads omkring dem, og de får lov at leve,” siger Lisbeth.

  

Ville gøre det igen uden at blinke 

I dag bor Lisbeth, Rune og deres to døtre på 12 og 14 i deres hus på 178 kvadratmeter på næsten ottende år, og de elsker det. Men faktisk elskede de også selve processen om at bygge nyt så meget, at de drømmer om at gøre det igen engang.

”Processen var så fed, og det var megasjovt. Hvis der lige var en god byggegrund i området, gjorde vi uden tvivl igen,” siger Lisbeth. 

Noget af det, parret syntes var det allerbedste, var kombinationen af at føle sig både fri og tryg i processen.  

”At bygge med HusCompagniet var både stabilt og fleksibelt, hvilket er en fantastisk kombination, når man skal bygge nyt,” forklarer Lisbeth og forsætter:   

”Vi lænede os ind i en fasttømret proces, som vi følte en enorm tryghed ved. Vi vidste, at vi kom igennem byggeriet, og imens nogen tog sig af alt det praktiske, elskede vi at tage stilling til hver en lille detalje. Vi fik lov til at lave alt det sjove og til at sætte tingene sammen, præcis som vi gerne ville have det.” 

”Vi ville aldrig kaste os ud i selv at stå for at koordinere et byggeri. Det har vi hverken evnerne eller overskuddet til,” understreger hun.

 

Indretning tro mod husets arkitektur

For en kreativ sjæl som Lisbeth er et nybygget hus et sjovt lærred. Udover sit arbejde som selvstændig kreativ konsulent fra hendes flotte hjemmekontor, dyrker hun også indretning, farver, diy og genbrugsfund i familiens hjem. 

”For mig og os er farver en god genvej til personlig stil. Jeg har altid boet med farver, og som barn malede jeg mit værelse hele tiden. Jeg finder ro og velvære i farver.”
Indretningen skal dog stadig være inden for de rammer, selve huset sætter. 

”Jeg prøver at indrette i husets stil, og vores ting skal matche den stramme arkitektur. Derfor er det bevidst, at alt, vi har, er rimelig moderne. Samtidig har vi ikke alt for mange ting, men de ting, der er, må godt larme. Jeg har nogle gange forsøgt med møbler af mere nostalgisk stil, men hver gang jeg har fundet et ældre møbel med romantiske krummelurer, så må jeg droppe det igen. Det passer bare ikke ind.”  

 

Vent venligst mens vi henter produkter - kan tage op til 10 sek.