HusCompagniet
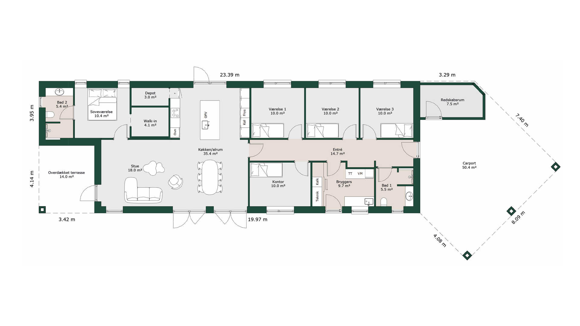
Længehus hvor carporten og redskabsrummet giver huset knækformen.

Husets hjerte - det store køkken/alrum i åben forbindelse med stuen har praktisk skjult depot, udgang til terrasser på begge sider af huset og masser af lysindfald. 
De tre gode børneværelser ligger i separat børneafdeling hvor der ligeledes ligger badeværelse, bryggers og kontor. 
Forældreafdelingen rummer soveværelse, badeværelse og walk-in.
Den overdækkede terrasse giver mulighed for at nyde de lange sommeraftener i ly og læ.