HusCompagniet

Vi byder velkommen i denne herskabelige palævilla med valmtag uden udhæng.

Huset er opført med alle de autentiske valg der udgør palæstilen, herunder symmetriske sprossede vinduer, gesims, kvadre, vandskuring og tegltag.

Indvendigt kan nævnes øget loftshøjde, sildebensgulve, profilerede døre og fodlister.

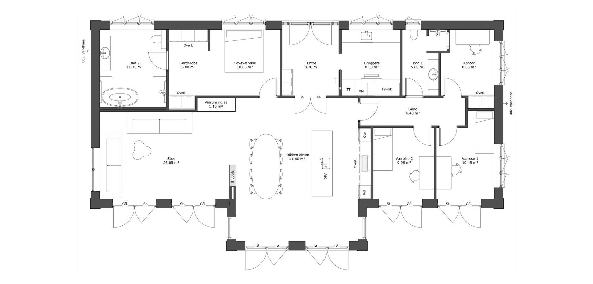
Den imponerende dobbelte entredør understreger ligeledes husets stil og inviterer indenfor i en rummelig entre, hvorfra man gennem den franske dobbeltdør, har kig til det velindrettede køkken/alrum.

I den lille væg der adskiller Køkken/alrum og stue er der indbygget en dekorativ 3-sidet biopejs, som bidrager til en hyggelig atmosfære i begge rum.

Huset indeholder desuden rummeligt bryggers, 2 værelser, 1 kontor, badeværelse og master bedroom med tilhørende garderobe og bad.

Alt i alt en unik bolig, hvor der er kræset for detaljerne.

Vi ser frem til at kontakte dig hurtigst muligt. Når du trykker send her, afgiver du samtykke til, at vi fremover må henvende os til dig på e-mail og telefon. Vores henvendelser indeholder god information om husbyggeri og konkrete tilbud. Vi behandler dine personoplysninger med stor omtanke, og som beskrevet i vores persondatapolitik Du kan til enhver tid tilbagekalde dit samtykke.

Du kan også ringe direkte til os +45 86 10 01 99

Bestil vores gratis katalog og se masser af arkitektur, få fakta, inspiration og bliv klogere på dine muligheder. Bliv inspireret til dit nye hjem.