HusCompagniet
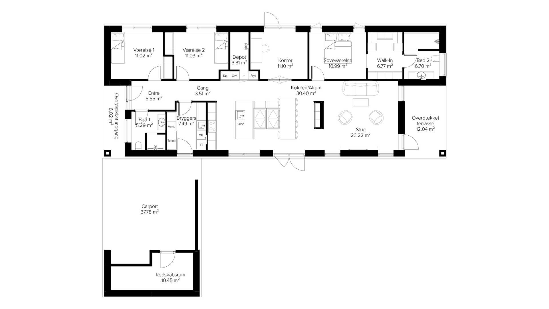
Her mødes man af et overdækket indgangsparti, der åbner op til husets entré og et fint langt kig gennem hele huset. Det store køkken-alrum ligger badet i dagslys fra både ovenlysvinduer og vinduespartierne og som husets hjerte ligger det som det helt naturlige samlingspunkt. Der delvist åbent mod stuen og med newyorker parti til kontoret, er der rig mulighed for at være tæt på hinanden selvom man ikke er i samme rum.

Husets voksenafdeling rummer et godt soveværelse, stort walk-in og badeværelse. Med to fine børneværelser med indbygget opbevaring, er huset perfekt for børnefamilien.

Den moderne parcel byder på gode udvendige detaljer som smuk reces i murværket, praktisk niche i carporten til renovationsspande, overdækket indgangsparti integreret med carporten samt en skøn overdækket terrasse.
 

Vi ser frem til at kontakte dig hurtigst muligt. Når du trykker send her, afgiver du samtykke til, at vi fremover må henvende os til dig på e-mail og telefon. Vores henvendelser indeholder god information om husbyggeri og konkrete tilbud. Vi behandler dine personoplysninger med stor omtanke, og som beskrevet i vores persondatapolitik Du kan til enhver tid tilbagekalde dit samtykke.

Du kan også ringe direkte til os +45 75 50 50 50

Bestil vores gratis katalog og se masser af arkitektur, få fakta, inspiration og bliv klogere på dine muligheder. Bliv inspireret til dit nye hjem.