HusCompagniet
  • 150 m2 længehus
  • 150 m2 længehus
  • 150 m2 længehus
  • 150 m2 længehus
  • 150 m2 længehus
  • 150 m2 længehus
  • 150 m2 længehus
  • 150 m2 længehus
  • 150 m2 længehus
  • 150 m2 længehus

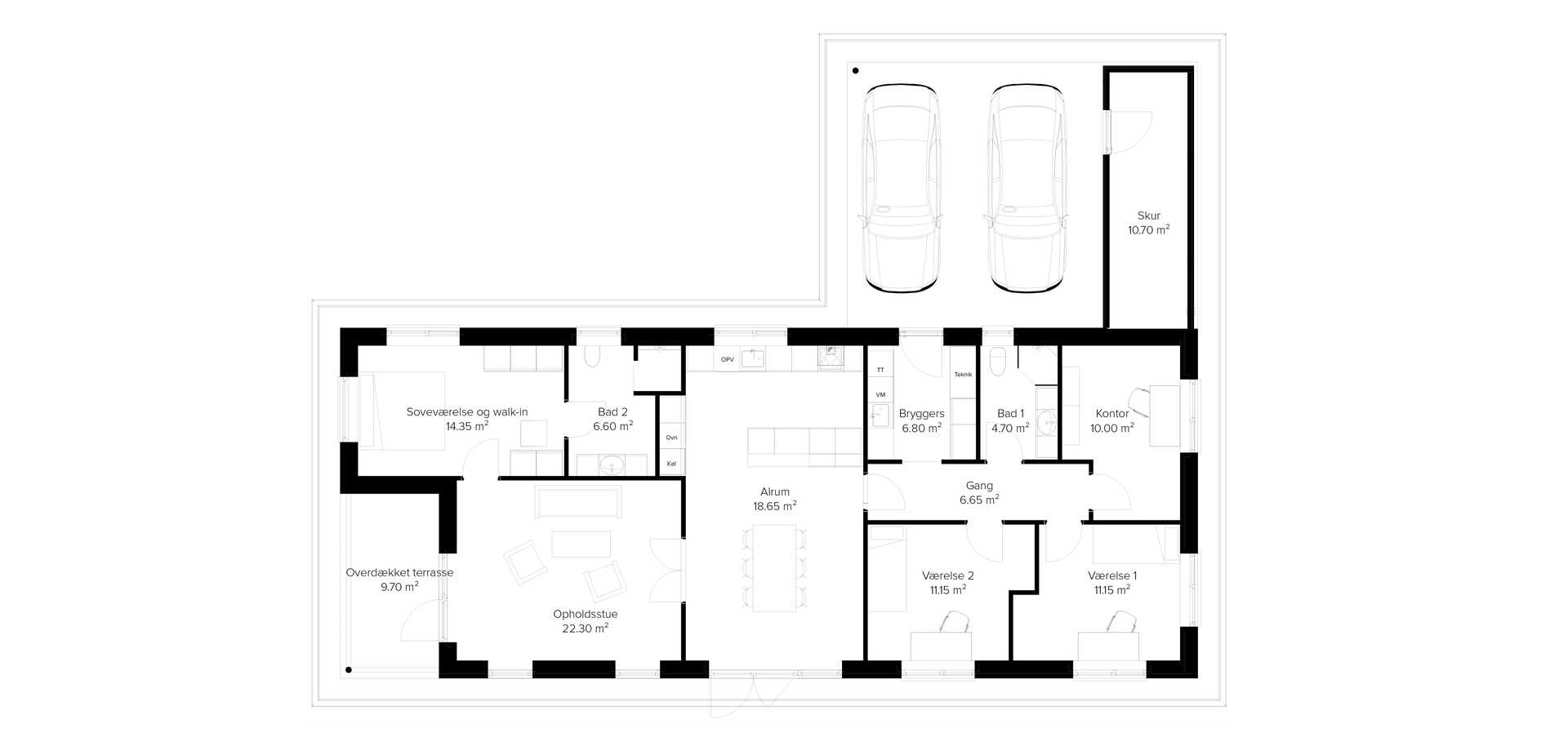
Huset er opført som et længehus på 150 m2 med tilhørende integreret carport og overdækket terrasse. Huset er opført som klassisk parcel med valmtag og udhæng. I køkken/alrummet, der ligger centralt placeret i huset, er der adgang til et praktisk depotrum samt en fin udsigt igennem husets store vinduespartier mod haven. I forlængelse af køkken/alrum ligger rummelig stue med adgang via den dobbelt glasdør.

Fra både køkken/alrum og stue er der direkte udgang til den sydvestvendt have. Huset indeholder masterbed-room med skabsvæg, 3 rummelige værelser, kombineret entré/bryggers og skønt børnebadeværelse med bruseniche.

En rigtig fin og rummelig bolig til børnefamilien.

Boligen ligger i den charmerende by Skævinge i det naturskønne Nordsjælland. Skævinge har en hyggelig og tæt lokalsamfundsfølelse, hvor beboerne nyder en rolig hverdag i grønne omgivelser tæt på smukke skovområder og åbne marker, der indbyder til gåture og udendørs aktiviteter.

Byen har både dagligvarebutikker, sportsfaciliteter og en lokal folkeskole med tilknyttet fritidsordning, som gør den attraktiv for børnefamilier. Skævinge har også en aktiv idrætsforening, der tilbyder alt fra fodbold og håndbold til gymnastik. Derudover er der et lokalt fitnesscenter i det ny åbnede kulturhus samt flere legepladser, der skaber rammerne for en sund og aktiv livsstil.

Med sin beliggenhed tæt på Hillerød er der let adgang til større shoppingmuligheder, kulturtilbud og togforbindelser til København, hvilket gør Skævinge til et ideelt sted for dem, der ønsker en fredelig hverdag uden at være langt fra bylivets puls.

Vi ser frem til at kontakte dig hurtigst muligt. Når du trykker send her, afgiver du samtykke til, at vi fremover må henvende os til dig på e-mail og telefon. Vores henvendelser indeholder god information om husbyggeri og konkrete tilbud. Vi behandler dine personoplysninger med stor omtanke, og som beskrevet i vores persondatapolitik Du kan til enhver tid tilbagekalde dit samtykke.

Du kan også ringe direkte til os +45 88 62 30 00

Bestil vores gratis katalog og se masser af arkitektur, få fakta, inspiration og bliv klogere på dine muligheder. Bliv inspireret til dit nye hjem.