HusCompagniet
  • 207 m2 forskudt længehus
  • 207 m2 forskudt længehus
  • 207 m2 forskudt længehus
  • 207 m2 forskudt længehus
  • 207 m2 forskudt længehus
  • 207 m2 forskudt længehus
  • 207 m2 forskudt længehus
  • 207 m2 forskudt længehus
  • 207 m2 forskudt længehus
  • 207 m2 forskudt længehus
  • 207 m2 forskudt længehus

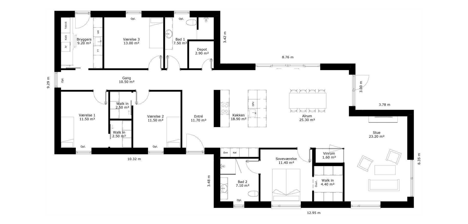
Når man træder indenfor i husets entré, bliver man budt velkommen af en råmurstensvæg med biopejs. Entréen er samtidig fordelingsgang til 2 dejlige børneværelser, begge med walk-in samt bryggers, badeværelse, kontor og et praktisk depotrum.

Husets hjerte - det store køkken/alrum har åben adgang til stuen, og er udført med loft til kip, som sammen med ovenlysvinduerne giver ekstra luft og rumhøjde.

Køkken/alrummet ligger langs med husets længderetning, og med stor dobbelt skydedør, kipvinduer i gavlen og ovenlys fremstår det lyst og venligt på alle årets dage. Her er plads til gæster og det lækre vinrum med rå mursten og glasparti giver rummet personlighed.

Husets forældreafdeling består af soveværelse - også med loft til kip og ovenlysvindue, samt rummeligt walk-in og stort badeværelse med brus. 

Vi ser frem til at kontakte dig hurtigst muligt. Når du trykker send her, afgiver du samtykke til, at vi fremover må henvende os til dig på e-mail og telefon. Vores henvendelser indeholder god information om husbyggeri og konkrete tilbud. Vi behandler dine personoplysninger med stor omtanke, og som beskrevet i vores persondatapolitik Du kan til enhver tid tilbagekalde dit samtykke.

Du kan også ringe direkte til os +45 88 62 31 00

Bestil vores gratis katalog og se masser af arkitektur, få fakta, inspiration og bliv klogere på dine muligheder. Bliv inspireret til dit nye hjem.