HusCompagniet

 

Mere om eksemplet:

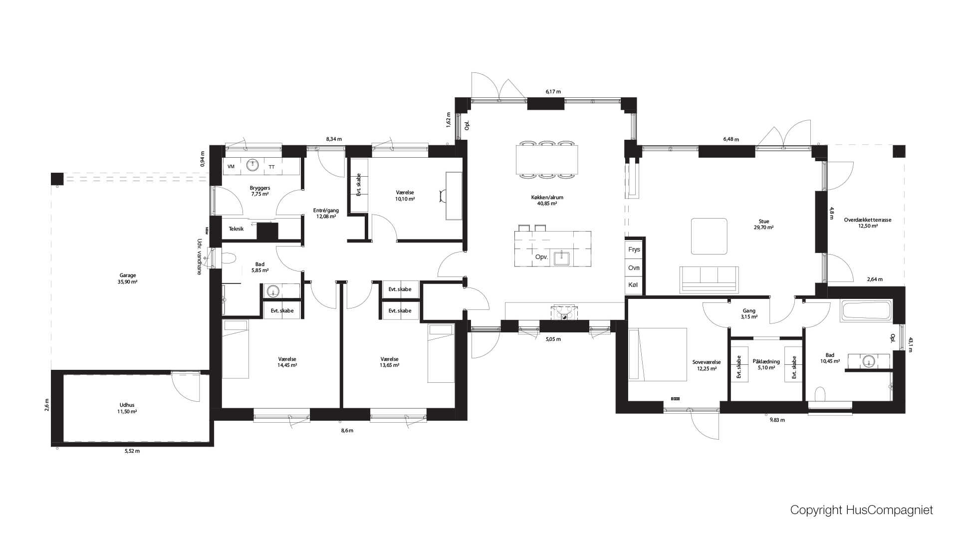
  • Integreret carport
  • Køkken/alrum er indrettet med 320 cm til loft,
  • Biopejs der fungerer som eksklusiv rumdeler mellem stue og spisestue.
  • 3 børneværelser
  • Forældreafdeling med walk-in og badeværelse med badekar

 

Vent venligst mens vi henter produkter - kan tage op til 10 sek.

Vi ser frem til at kontakte dig hurtigst muligt. Når du trykker send her, afgiver du samtykke til, at vi fremover må henvende os til dig på e-mail og telefon. Vores henvendelser indeholder god information om husbyggeri og konkrete tilbud. Vi behandler dine personoplysninger med stor omtanke, og som beskrevet i vores persondatapolitik Du kan til enhver tid tilbagekalde dit samtykke.

Bestil vores gratis katalog og se masser af arkitektur, få fakta, inspiration og bliv klogere på dine muligheder. Bliv inspireret til dit nye hjem.