HusCompagniet

En familievenlig villa med ensidig taghældning der giver højt til loftet og store vinduespartier.


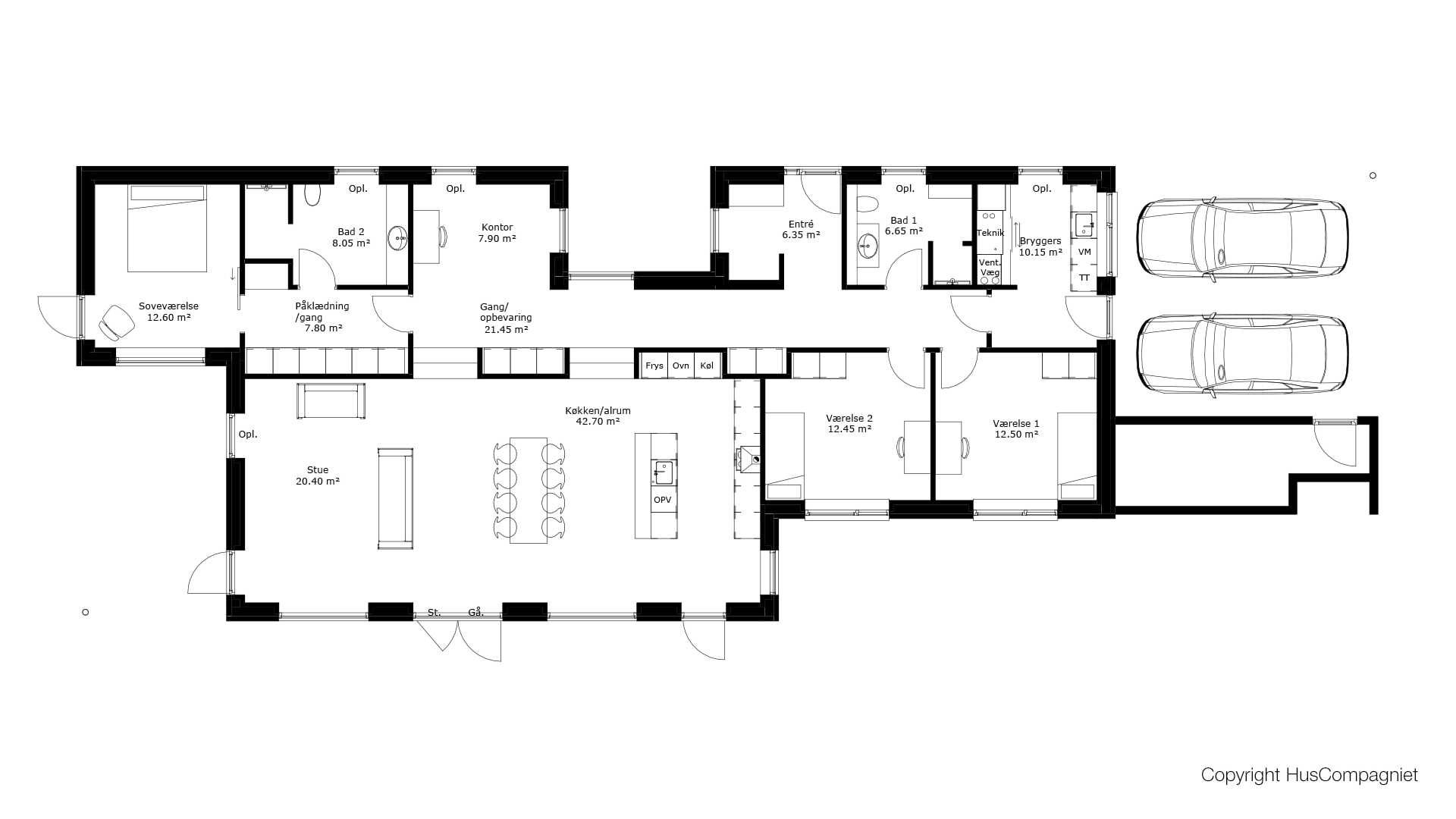
Mere om eksemplet:

  • Overdækket terrasse
  • Integreret dobbelt carport
  • Kontor i åben forbindelse med gang
  • Stor forældreafdeling med walk-through
  • 2 værelser i separat børneafdeling 

Sammen med din byggerådgiver og tegnestuen kan du flytte vægge, tilføje rum, detaljer og vende og dreje plantegningen, indtil du har netop den plantegning der passer til dig og dit behov.

Vent venligst mens vi henter produkter - kan tage op til 10 sek.

Vi ser frem til at kontakte dig hurtigst muligt. Når du trykker send her, afgiver du samtykke til, at vi fremover må henvende os til dig på e-mail og telefon. Vores henvendelser indeholder god information om husbyggeri og konkrete tilbud. Vi behandler dine personoplysninger med stor omtanke, og som beskrevet i vores persondatapolitik Du kan til enhver tid tilbagekalde dit samtykke.

Bestil vores gratis katalog og se masser af arkitektur, få fakta, inspiration og bliv klogere på dine muligheder. Bliv inspireret til dit nye hjem.